Leave a Message

Thank you for your message. We will be in touch with you shortly.

681 Kingdom Place
681 Kingdom Place
SEE ALL PHOTOS
681 Kingdom Place
681 Kingdom Place
Disclaimer: All information deemed reliable but not guaranteed and should be independently verified. All properties are subject to prior sale, change or withdrawal. Neither listing broker(s) nor KW Steel City shall be responsible for any typographical errors, misinformation, misprints and shall be held totally harmless.   Courtesy of  KELLER WILLIAMS STEEL CITY
For Sale

681 Kingdom Place

681 Kingdom Place, Hickory Twp, PA 16101

$525,000
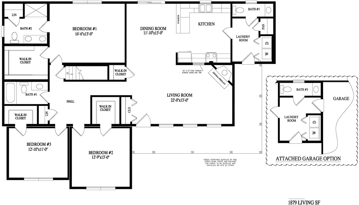
Introducing "The Joshua", a stunning ranch-style new construction home located in the beautiful Kingdom Place Homes subdivision in Hickory Township. Designed with both elegance and functionality in mind, The Joshua offers 1,879 square feet of living space, featuring 3 spacious bedrooms and 2.5 bathrooms in a thoughtfully crafted layout. The expansive living area flows effortlessly into the dining and kitchen spaces, creating an inviting atmosphere perfect for entertaining or everyday comfort. The private primary suite provides a peaceful retreat, while two additional bedrooms offer flexibility for family, guests, or a home office. An 8-foot basement provides exceptional ceiling height and future finishing potential, while the unfinished attic offers the opportunity to create additional storage or expand the home with a bonus living space tailored to your needs. Situated in the rapidly growing Kingdom Place Homes community, buyers also have the opportunity to choose from several additional thoughtfully designed floor plans. Welcome home to The Joshua, where comfort, craftsmanship, and community come together.

3
beds

3
baths

1,879 Sq.Ft. LIVING AREA

1 Acres lot

Allison Williams

Allison Williams

Features & Amenities

Interior

  • total bedrooms3
  • Total bathrooms3
  • full bathrooms2
  • half bathroom1

Area & Lot

  • Status For Sale
  • Living Area1,879 Sq.Ft.
  • Total Area1,879 Sq.Ft.
  • Lot Area1 Acres
  • MLS® ID1746702
  • TypeResidential
  • YEAR BUILT2026
  • NeighborhoodNew Castle
  • Architecture StylesRanch
  • School DistrictLaurel

Exterior

  • STORIES1
  • PoolNone
  • roofComposition
  • sewerPublic Sewer

Financial

  • Sales Price$525,000
image

Schedule a Showing

We would love to show you our beautiful property. Please select your preferred date and time below. An agent will be in touch shortly to confirm your appointment.

Schedule a Showing

We would love to show you our beautiful property. Please select your preferred date and time below. An agent will be in touch shortly to confirm your appointment.

Thank you for your interest in 681 Kingdom Place, Hickory Twp, PA 16101. We are reviewing your request and will be in touch shortly!

Mortgage Calculator

Estimate your monthly mortgage payment, including the principal and interest, property taxes, and HOA. Adjust the values to generate a more accurate rate.

All estimates are provided for informational purposes only. Actual amounts may vary.
$0,000 Your Payment 20 15 65
$0,000 Your Payment

New Castle

Explore

Work with Us

Whether you’re a first-time homebuyer, seasoned investor, or a real estate professional looking for your next chapter, KW Steel City is where growth begins.

Follow Us on Instagram